When modern industrial edge meets soft European refinement, magic happens in the kitchen ✨ And this...
Elevated Calm: Designing a Serene Bathroom with Oslo Oak
✨ There’s something magical about a well-designed bathroom. It’s not just a functional space—it’s a daily retreat. Whether you're starting your morning or winding down at night, the right setup makes all the difference. 🌿And if you’re drawn to natural textures, soft elegance, and smart design, this Oslo Oak bathroom is full of inspiration.
At the center of this look is our Oslo Oak cabinetry, known for its gentle wood grain and warm, inviting tone. The finish strikes the perfect balance between modern simplicity and organic charm—bringing a sense of calm and connection to nature 🌱. Its clean lines and open design echo a European aesthetic that feels timeless and tailored.
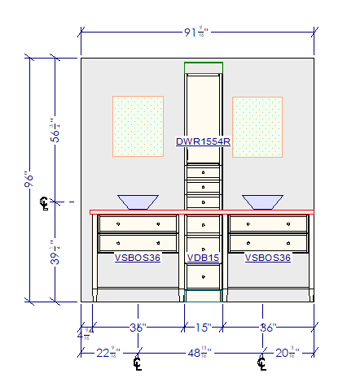
What really sets this space apart is the layout. The design features two separate vanities, anchored by a tall center tower that adds both symmetry and vertical storage 📏. The open shelving below is perfect for styling towels, baskets, and everyday essentials, keeping the room light, airy, and practical.
But it’s not just the layout—it’s the details that make this space shine. Each cabinet is finished with diecast rose gold knobs ✨. They’re a small but mighty design choice, adding a soft metallic glow that warms up the wood and ties in beautifully with the light fixtures and faucets. It’s the kind of detail that catches the eye without demanding attention—elegant, modern, and subtly luxurious.
The rest of the space follows suit with a palette that’s soft and luminous. Ivory-toned walls and glossy tile create a beautiful contrast against the oak cabinetry while reflecting light to keep things bright and fresh 💫. Two rounded mirrors echo the curves of the pendant lights and vessel sinks, creating a sense of harmony across the room.
A few natural accents—like a woven basket, wood stool, and fresh tulips—bring texture and personality into the mix without cluttering the clean aesthetic. Every element feels intentional, layered, and livable.

💡 Design Takeaway:
This Oslo Oak setup is a beautiful example of what happens when form meets function. It’s warm without being rustic, modern without feeling cold, and elevated without losing its everyday comfort.
So, if you're dreaming of a bathroom that feels like a sanctuary—you just found your cabinetry blueprint 🛁✨
.jpg?width=960&height=960&name=Bathroom%201%20-%20Oslo%20%20Oak%20-%20View%201%20(1).jpg)