✨ There’s something magical about a well-designed bathroom. It’s not just a functional space—it’s a...
Designing a Kitchen with European Elegance & Industrial Edge: Oslo Oak
When modern industrial edge meets soft European refinement, magic happens in the kitchen ✨ And this space is proof. Using our Oslo Oak cabinets as the foundation, paired with matte black hardware and topped with the sleek F396 as crown molding, you get a kitchen that feels both elevated and effortlessly livable.
The star of this space is undoubtedly the Oslo Oak cabinetry. Its natural grain and light wood tone give off that calm, curated European vibe—clean, minimal, and organic. The slab-style doors keep things modern and simple, while the vertical grain adds just enough visual texture to keep it interesting. It’s the kind of wood finish that feels high-end but still totally inviting 🤎
Adding in matte black hardware brings contrast and a touch of industrial boldness. The straight-edge pulls echo the lines of the cabinetry and the architecture of the room—notice how they tie in with the window frames, the pendant lighting, even the stools. It’s all about repetition and rhythm 🖤
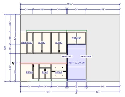
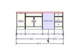
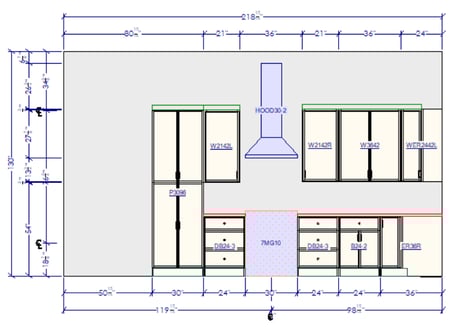
The layout plays a huge part in this look too. It’s open, functional, and smartly balanced—with tall pantry cabinets on one side, wrap-around wall and base units, and that spacious island right in the center. Everything is integrated, intentional, and streamlined—just like you'd see in a modern European kitchen.
But what really seals the look? That finishing F396 as crown molding. Sleek and understated, it adds just the right amount of polish to the top of the cabinets without disrupting the clean lines. It’s a detail you might not notice at first—but you'd definitely miss if it weren’t there 💡


✨The industrial feel gets a boost from the raw textures around the cabinetry:
🧱 Whitewashed brick walls
🪨 Charcoal-toned countertops
💡 Matte black pendant lighting
🌿 Natural wood flooring to echo the cabinets and soften the overall palette
Every element works together in harmony, creating a space that’s visually balanced and full of quiet personality.

